Bilocale in vendita

Civitanova Marche, Via Ferdinando Magellano - San Gabriele
€ 100.000
2 locali 2 locali
40 Mq 40 Mq
1 bagno 1 bagno

Bilocale in vendita

Civitanova Marche, Via Ferdinando Magellano - San Gabriele

Descrizione annuncio

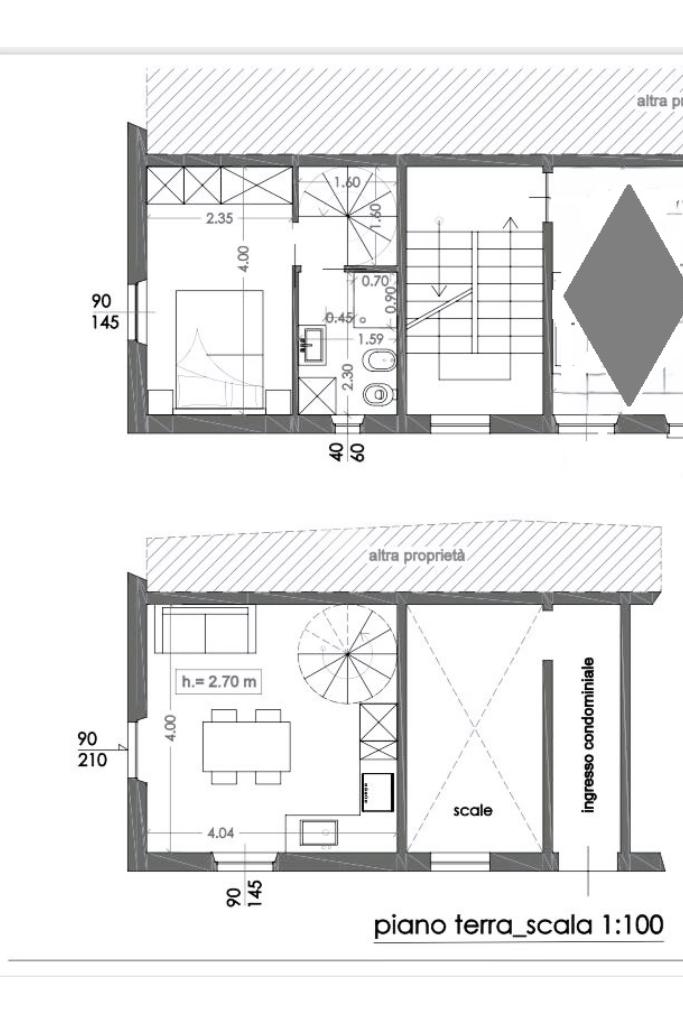
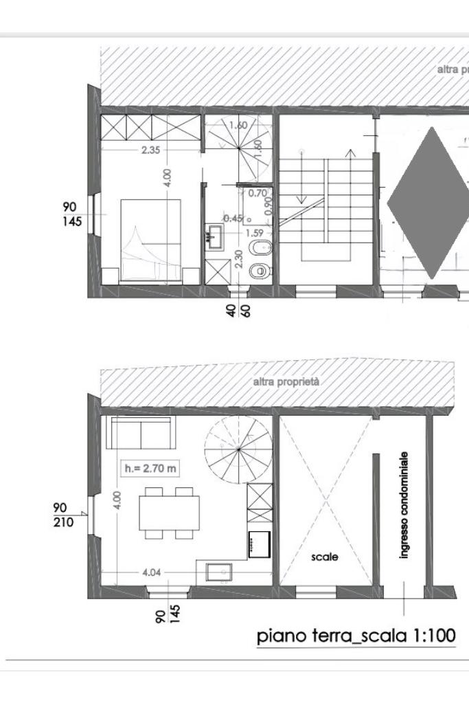
CIVITANOVA MARCHE, proponiamo in vendita duplex, bilocale su due livelli, totalmente ristrutturato al piano terra in palazzina di recente rinnovamento, con ingresso indipendente.

FONTESPINA a 200 mt dalla spiaggia di sabbia del lungomare nord, nei pressi della chiesa di San Gabriele, in quartiere residenziale tranquillo e servito, con il centro città raggiungibile a piedi.

L' appartamento di circa 36 mq con ingresso indipendente dall'edificio è stato totalmente ristrutturato e verrà consegnato con le finiture terminate, pronto per essere abitato.

Il bilocale ha ingresso su un'ampia e luminosa zona giorno dalla quale con scala a chiocciola di design si raggiunge il piano superiore con camera matrimoniale e bagno finestrato con box-doccia.

La ristrutturazione ha previsto: sostituzione infissi doppio vetro, tapparelle in pvc, pavimentazione in gres porcellanato, nuovo impianto elettrico, nuovo impianto idraulico, impianto di climatizzazione dual split caldo/freddo e boiler per acqua calda sanitaria, portone blindato.

L'edificio è stato oggetto di tinteggiatura integrale e rifacimento delle cornici sottogronda, oltre che tinteggiatura della scala condominiale e nuova pavimentazione all'ingresso.

IMMOBILE IDEALE PER CHI CERCA UN APPOGGIO AL MARE: vicinanza alla spiaggia, taglio ideale e basse spese manutentive.

IMMOBILE IDEALE PER USO INVESTIMENTO: quartiere residenziale servito, pronto all'uso e senza condominio.

Stai cercando casa? Hai bisogno di una valutazione immobiliare gratuita?

Rivolgiti a Tecnocasa, la più grande rete immobiliare in Italia!

Per ulteriori informazioni contattataci al 3895275992 - 073347374, oppure vieni a trovarci a Civitanova Marche, Corso Umberto I 162 o Viale Vittorio Veneto, 209.

Mostra tutto

Nelle vicinanze

Trasporto pubblico Trasporto pubblico
Civitanova Marche - Montegranaro
Civitanova Marche - Montegranaro
1,1 Km
Ricariche auto elettriche Ricariche auto elettriche
LIDL Civitanova Marche
2,4 Km
Scuole Scuole
IST. Prof. Corridoni
1,4 Km
Scuola Secondaria Mestica
2,0 Km
Istituto Superiore Leonardo Da Vinci
2,0 Km
Scuola Elementare "Anita Garibaldi"
2,3 Km
Scuola Primaria Santa Maria Apparente
2,8 Km
Farmacia Farmacia
Farmacia Fontespina
180 m
Farmacia Angelini
1,5 Km
Farmacia comunale n. 6
2,8 Km
Ospedali Ospedali
Casa di Cura Villa Pini
590 m
Ospedale Civitanova Marche
2,2 Km
Supermercati Supermercati
Coop
1,9 Km
Lidl
2,3 Km
Simply Market
2,4 Km
Natura Si
2,4 Km
Eurospin
2,7 Km
Negozi Negozi
Gattari
110 m
Conad city
160 m
Calliope
1,1 Km
Calzedonia
1,2 Km
AdamoEva
2,8 Km
Bar Bar
Son Amar
170 m
San Marco
170 m
Golden Beach
210 m
Re Sole
270 m
Galileo
280 m
Ristoranti Ristoranti
Trattoria Stella Marina
100 m
La Briciola Beach
150 m
Artigiano della Carne
160 m
La Sirenetta
170 m
Passione Carnale
210 m
Mostra tutto

Caratteristiche

Rif.:
61193107
Piano:
Terra di 3
Totale piani:
3
Camere da letto:
1
Arredamento:
Assente
Condizionamento:
Autonomo
Mostra tutto
Prezzo Prezzo
€ 100.000
Rata mutuo Rata mutuo
€ 475 / mese
Spese annue Spese annue
€ 0
Proponi il tuo prezzoProponi il tuo prezzo

Classe Energetica

B
B
B
B
B
B
B
B
B
EP invernale del fabbricato:
EP estiva del fabbricato:
Anno di costruzione:
1960
Riscaldamento:
Autonomo
Tipo impianto:
Ad aria
Tipo alimentazione:
Aria

Ti interessa visionare l'immobile?

Fissa un appuntamento  Fissa un appuntamento

Richiedi informazioni

Clicca su Leggi per aprire l'informativa
* Questi campi sono obbligatori

Calcola il tuo mutuo

Semplice e senza impegno
Anticipo

( % )
Mutuo

( % )

pochi semplici passi

inserisci i tuoi dati
Questionario completato
Grazie per aver richiesto un appuntamento senza impegno con un nostro Consulente del Credito e Assicurativo.

Hai inserito correttamente tutti i dati necessari e a breve riceverai una e-mail con un link da convalidare per inviare i tuoi dati.
Affiliato
Civitanova Srl
Corso Umberto I, 162 62012 Civitanova Marche (MC)

Il nostro staff


  • Matteo Crocetti
    Affiliato

  • Denise Paoletti
    Coordinatrice

  • Gianluca Ripari
    Collaboratore

  • Andrea Spreca
    Responsabile

  • Lorenzo Tordini
    Collaboratore
Corso Umberto I, 162 62012 Civitanova Marche (MC)
Zona: Civitanova Marche
Mostra su mappa
Orari: Dal Lunedì al Venerdì 9.00 -13.00 /15.30-19.30 Sabato 9.00-12.30 /15.00-17.30 Domenica chiuso
Affiliato
Civitanova Srl
Corso Umberto I, 162 62012 Civitanova Marche (MC)

2026 Tecnocasa Franchising S.p.A. - P. IVA 08365160152 - Via Monte Bianco 60/A 20089 Rozzano (MI). Ogni agenzia ha un proprio titolare ed è autonoma. Privacy policy | Policy utilizzo | Cookie policy